

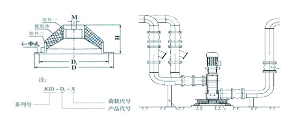
JGD型橡膠剪切隔振器是由合成橡膠和內置金屬件組成,經過硫化成圓錐體,橡膠部分受剪切力、具有較大的變形范圍和較低的固有頻率。
工作溫度范圍在-5oC--+50oC,溫度變化時,剛度也有所變化;阻尼比C/C0>0.07。
我廠生產的JGD型橡膠剪切隔振器選用優(yōu)質天然橡膠,云象**標1#天然橡膠,含膠量達到46%左右,具有良好的減震和降噪效果。
JGD橡膠剪切橡膠減震器尺寸圖:


手機:17317317121
(微信同號)
地址:上海市寶山區(qū)園康路255號1號樓A區(qū)三層